Riverside Garden Centre

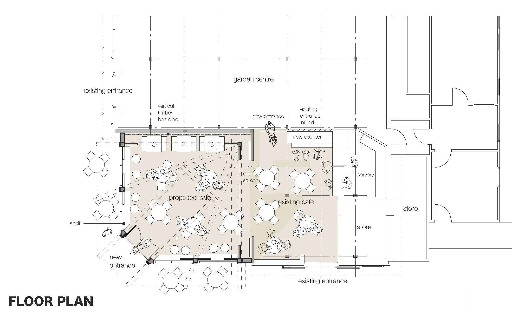
Design and project management for the construction of an new cafe extension and amenity block for the Riverside Garden Centre Bristol, In collaboration with John Thompson Architects, James Nicholson and Shape Studio. 

Completed Spring 2017, pictures coming soon...